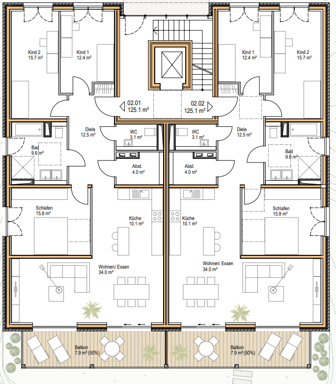
Am Nachtigallenweg 3a entstehen sieben bezugsfertige Mietwohnungen. Details zu Wohnraum und Mietpreisen finden Sie unten.

NEUBAU: Die Nachtigall
Innovativ. Nachhaltig. Zukunftsweisend.

Fakten im Überblick
Neubau: Die Nachtigall
M E R K M A L E :
Bauweise: Holzbau
Energieversorgung: Wärmepumpe
Stromerzeugung: Photovoltaikanlage
Energiestandart: Effizienzhaus 40
E-Infrastruktur: Ladesäulen
W O H N Q U A L I T Ä T :
Wandgestaltung: Lehmputz
Heizsystem: Fußbodenheizung
Komfort: Personenaufzug
Bodenbelag: Parket
Übergabe: schlüsselfertig
Details zum Wohnraum
Neubau: Die Nachtigall
Informationen:
Straße: Nachtigallenweg 3a
Fläche: 115,0 m² | 4,0 Zimmer KDB
Frei ab: Ende 2026
Mietzusammensetzung:
Kaltmiete: 1.610,00 €
BK-Vorauszahlung: 240,00 €
HZK-Vorauszahlung: 35,00 €
Gesamt: 1.885,00 €
Energieausweis:
Angaben zum Energieausweis erfolgen, sobald dieser erstellt wurde.

Grundriss: Nachtigallenweg 3a – 1. OG
Spechtpfad 8
Informationen:
Straße: Spechtpfad 8 | 1. OG RE
Fläche: 59,40 m² | 3,0 Zimmer KDB
nur Badewanne
Frei ab: 01.03.2026
Mietzusammensetzung:
Kaltmiete: 443,00 €
BK-Vorauszahlung: 106,00 €
Hzk-Vorauszahlung: 110,00 €
Gesamt: 659,00 €
Angaben gemäß EnEV 2013
Art des Energieausweises:
[ ] Energiebedarfsausweis
[X] Energieverbrauchsausweis
Energiebedarfs-/ verbrauchswert
Wert: 114,8 kWh
Wesentlicher Energieträger
[X] Erdgas
[ ] Erdöl
[ ] Strom
Baujahr Gebäude
1956
Baujahr Wärmeerzeuger
2019
Energieeffizienzklasse
D
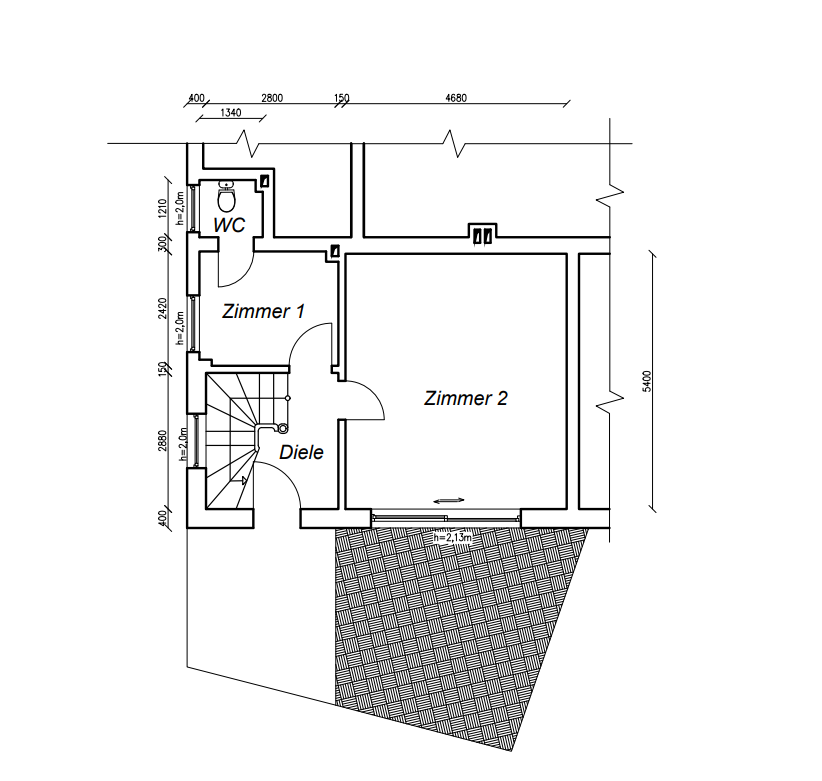
Schwalbenweg 6
Informationen:
Straße: Schwalbenweg 6 | 1.OG LI
Fläche: 66,57 m² | 3,0 Zimmer KDB
Frei ab: 01.03.2026
Mietzusammensetzung:
Kaltmiete: 562,00 €
BK-Vorauszahlung: 115,00 €
Hzk-Vorauszahlung: 61,00 €
Gesamt: 738,00 €
Angaben gemäß EnEV 2013
Art des Energieausweises:
[ ] Energiebedarfsausweis
[X] Energieverbrauchsausweis
Energiebedarfs-/ verbrauchswert
Wert: 176,1 kWh
Wesentlicher Energieträger
[X] Erdgas
[ ] Erdöl
[ ] Strom
Baujahr Gebäude
1956
Baujahr Wärmeerzeuger
2006
Energieeffizienzklasse
F
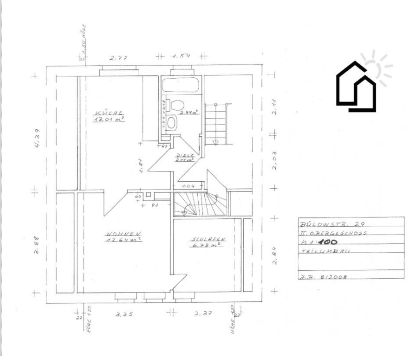
Felderstr. 56
Informationen:
Straße: Felderstr. 56 | EG RE
Fläche: 44,78 m² | 2,0 Zimmer KDB
Frei ab: 01.04.2026
Mietzusammensetzung:
Kaltmiete: 429,00 €
BK-Vorauszahlung: 80,00 €
Hzk-Vorauszahlung: 108,00 €
Gesamt: 617,00 €
Angaben gemäß EnEV 2013
Art des Energieausweises:
[X] Energiebedarfsausweis
[ ] Energieverbrauchsausweis
Energiebedarfs-/ verbrauchswert
Wert: 180,3 kWh
Wesentlicher Energieträger
[X] Erdgas
[ ] Erdöl
[ ] Strom
Baujahr Gebäude
1953
Baujahr Wärmeerzeuger
2011
Energieeffizienzklasse
F
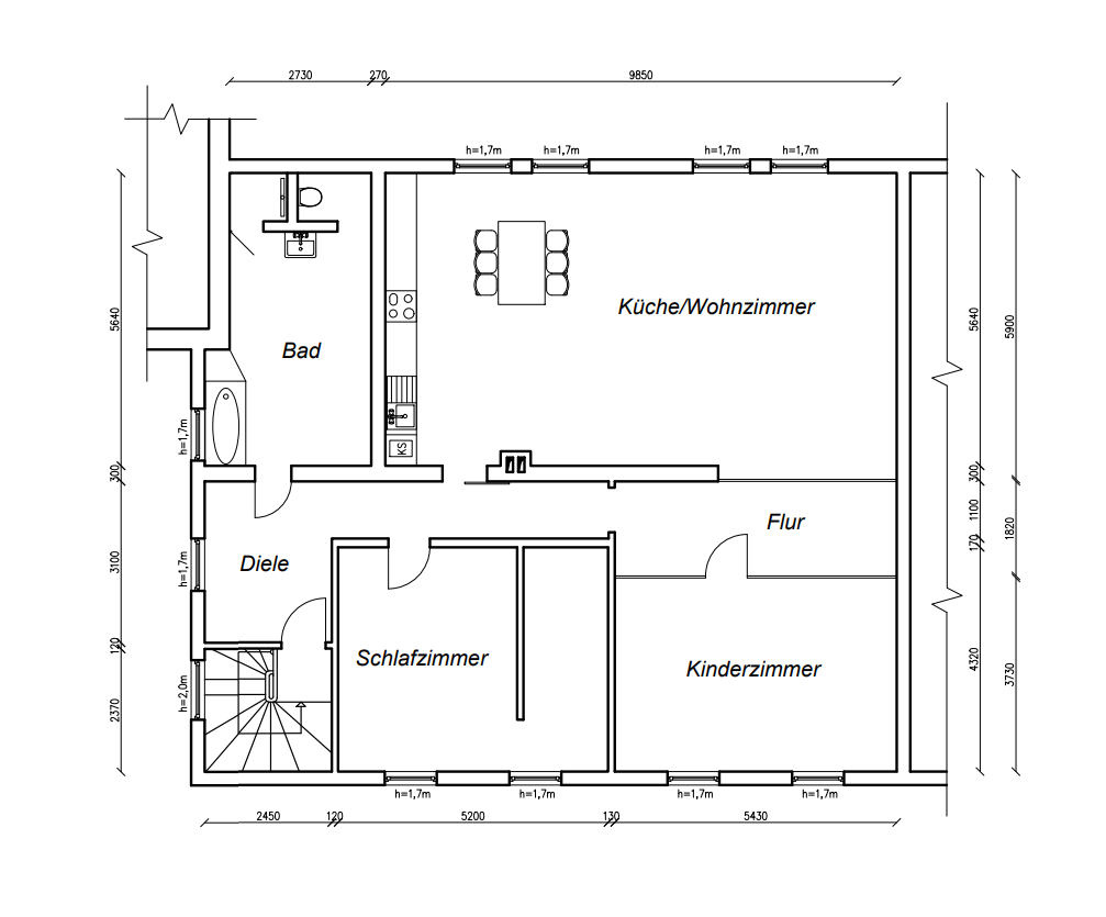
Messerstr. 26
Informationen:
Straße: Messerstr. 26 | 3.OG
Fläche: 66,00 m² | 3,0 Zimmer KDB
ohne Balkon
Frei ab: 01.02.2026
Mietzusammensetzung:
Kaltmiete: 460,00 €
BK-Vorauszahlung: 120,00 €
Hzk-Vorauszahlung: 98,00 €
Gesamt: 678,00 €
Angaben gemäß EnEV 2013
Art des Energieausweises:
[ ] Energiebedarfsausweis
[X] Energieverbrauchsausweis
Energiebedarfs-/ verbrauchswert
Wert: 128,8 kWh
Wesentlicher Energieträger
[X] Erdgas
[ ] Erdöl
[ ] Strom
Baujahr Gebäude
1974
Baujahr Wärmeerzeuger
2005
Energieeffizienzklasse
D
Die passende Wohnung ist nicht dabei?
Melden Sie sich gerne bei uns und lassen Sie sich auf unsere Interessentenliste setzen.
Termine unter der 0212 43020