Am Nachtigallenweg 3a entstehen sieben bezugsfertige Mietwohnungen. Details zu Wohnraum und Mietpreisen finden Sie unten.

NEUBAU: Die Nachtigall
Innovativ. Nachhaltig. Zukunftsweisend.

Fakten im Überblick
Neubau: Die Nachtigall
M E R K M A L E :
Bauweise: Holzbau
Energieversorgung: Wärmepumpe
Stromerzeugung: Photovoltaikanlage
Energiestandart: Effizienzhaus 40
E-Infrastruktur: Ladesäulen
W O H N Q U A L I T Ä T :
Wandgestaltung: Lehmputz
Heizsystem: Fußbodenheizung
Komfort: Personenaufzug
Bodenbelag: Parket
Übergabe: schlüsselfertig
Details zum Wohnraum
Neubau: Die Nachtigall
Informationen:
Straße: Nachtigallenweg 3a
Fläche: 115,0 m² | 4,0 Zimmer KDB
Frei ab: Ende 2026
Mietzusammensetzung:
Kaltmiete: 1.610,00 €
BK-Vorauszahlung: 240,00 €
HZK-Vorauszahlung: 35,00 €
Gesamt: 1.885,00 €
Energieausweis:
Angaben zum Energieausweis erfolgen, sobald dieser erstellt wurde.

Grundriss: Nachtigallenweg 3a – 1. OG
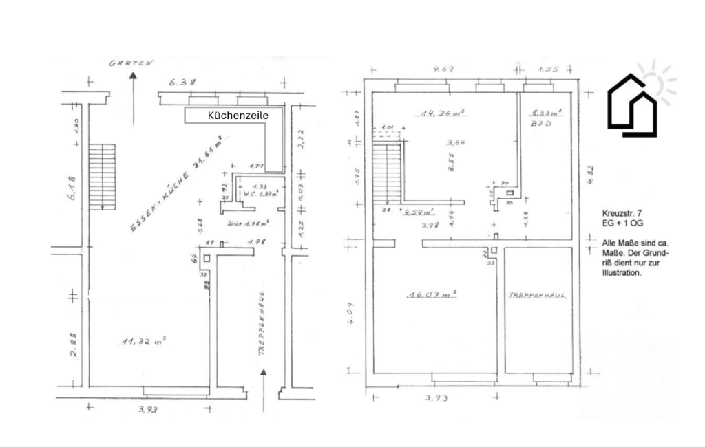
Kreuzstr. 7
Informationen:
Straße: Kreuzstr. 7 | EG + 1.OG
Fläche: 93,00 m² | 3,0 Zimmer KDB
Mit großer Terrasse/ Gartenstück
Frei ab: BEREITS VERMIETET !!!
Mietzusammensetzung:
Kaltmiete: 703,00 €
BK-Vorauszahlung: 112,00 €
Hzk-Vorauszahlung: 148,00 €
Gesamt: 963,00 €
Angaben gemäß EnEV 2013
Art des Energieausweises:
[ ] Energiebedarfsausweis
[X] Energieverbrauchsausweis
Energiebedarfs-/ verbrauchswert
Wert: 89,8 kWh
Wesentlicher Energieträger
[X] Erdgas
[ ] Erdöl
[ ] Strom
Baujahr Gebäude
1950
Baujahr Wärmeerzeuger
1997
Energieeffizienzklasse
C

Grundriss: Kreuzstr. 7 – EG + 1.OG
Die passende Wohnung ist nicht dabei?
Melden Sie sich gerne bei uns und lassen Sie sich auf unsere Interessentenliste setzen.
Termine unter der 0212 43020